Villa 9A

9A
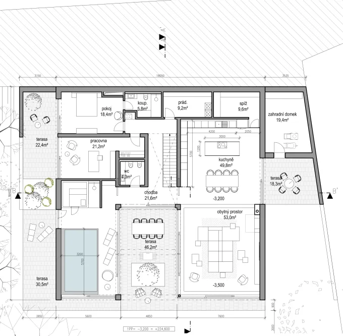
Living Area
508.0 m2
Plot
1,349.0 m2
Rooms
7
Bedrooms
4
Bathrooms
4
Living Room with Kitchen
102.0 m2
Home Office
21.0 m2
Terraces
117.0 m2
Atrium
46.0 m2

Generous villa with clean lines in a breathtaking environment.

This space will easily impress any lover of open spaces and the connection between the interior and exterior.

Virtual tour

The thoughtful orientation and placement of the house have achieved optimal use of the plot, providing perfect views of the Vltava River valley. The timeless villa reflects the current high demands for living, whether it is modern design or a sufficient amount of privacy from neighboring plots.

The feeling of privacy is emphasized by the orientation of most of the glazed areas towards the valley, so the interior of the house is hidden from unwanted views from the driveway. To ensure the absolute comfort of the residents, the villa is strategically divided into a social and private zone by the placement of the rooms. The social part of the house consists of the ground floor, whose central part is a spacious living room with an adjoining open kitchen and dining room with an area of more than 100 m².

A distinctive feature of the ground floor is also an open atrium with greenery and outdoor seating for pleasant days spent with family or friends. The covered atrium also serves as a connecting element between the garden and the private wellness area with an indoor stainless steel pool and sauna.

All home systems, including the audio system, alarm, cameras, outdoor blinds, lighting, and others, can be centrally controlled through the smart home system. The AMX system, used in the White House or the US Army, will be used in the houses.

  • Oak Floors
  • Underfloor Heating
  • Air Conditioning and Ceiling Cooling
  • Recuperation
  • Heat Pump
  • Finnish Sauna
  • Indoor Pool
  • Security System
  • AMX Smart Home
  • Aluminum Window Frames
  • Monolithic Structures and Exposed Concrete Ceilings
  • Technical Room
  • Garden House
  • Good Accessibility to the Center
  • Beautiful Views