Find your new home in a modern two-story villa with clean lines.
The villa with a pool is situated on a garden with a total area of 1,027 m², where you will enjoy spending time with family or friends.

The villa with a pool is situated on a garden with a total area of 1,027 m², where you will enjoy spending time with family or friends.
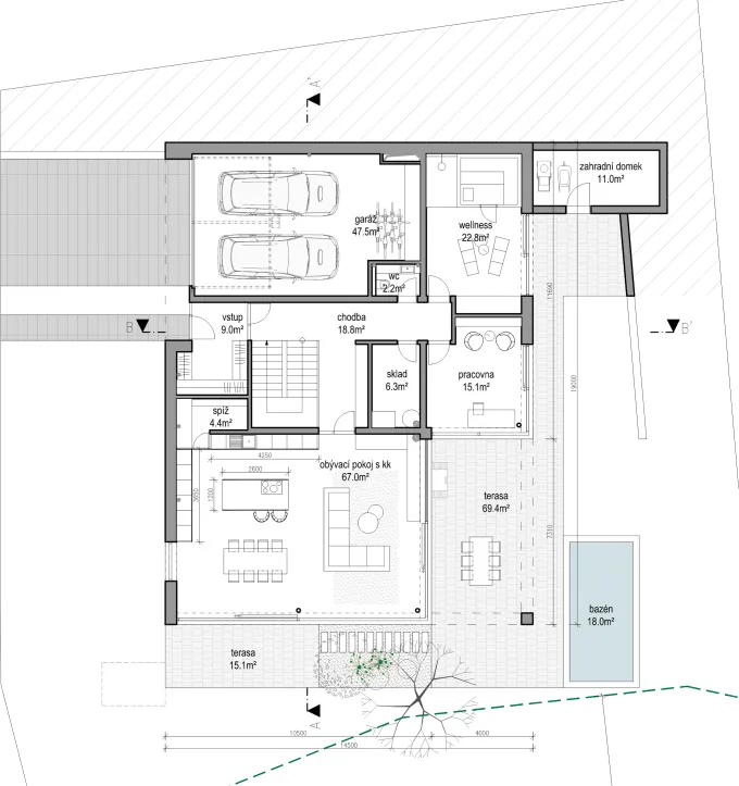
The location at a sufficient distance from neighboring plots ensures privacy, which is also aided by the orientation of most glass surfaces towards the garden.
The larger terrace provides enough space for outdoor seating, grilling, and relaxing by the outdoor pool, which is heated by a heat pump. You can also enjoy relaxation in your own wellness area with a sauna. The spacious garden is easily maintained thanks to automatic irrigation connected to a weather station and powered by a retention tank. The ground floor also includes a garage for two larger cars and practical storage spaces.
Thanks to large-format windows, all rooms are full of daylight and offer a calming view of the green garden, the river, and the surrounding area.
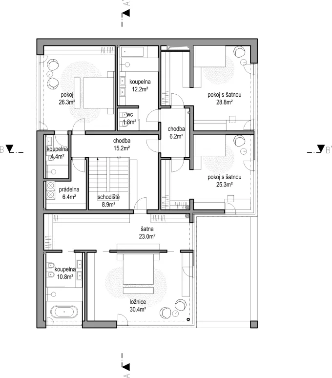
Complete living comfort is ensured by the house's superior technical facilities, making living easier than ever. All living rooms are equipped with air recuperation with individual settings. Most of these modern technologies can be controlled through a smart home system. The house will also be prepared for the installation of photovoltaics.