Villa 7D

7D
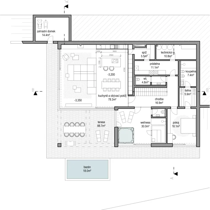
Living Area
378.0 m2
Plot
1,045.0 m2
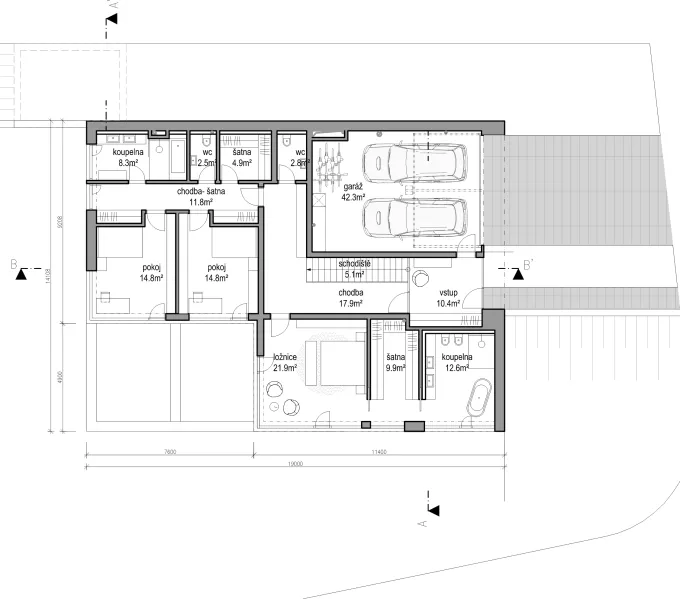
Rooms
6
Bedrooms
4
Bathrooms
4
Living Room with Kitchen
78.0 m2
Wellness
30.0 m2
Terraces
88.0 m2
Parking
4

This villa is synonymous with modern living with excellent access to Prague.

The architectural design meets all your expectations for living.

Virtual tour

The two-story building with a monolithic structure offers the new owner a high standard, technical precision with an emphasis on economic and ecological solutions, and a very practical layout.

The main criterion was to maintain the privacy of the residents and maximize the use of the surrounding terrain while preserving views of the Vltava River valley and the surrounding area. The strategic location of the house with sufficient distance from neighboring plots in a garden with an area of 1,045 m² ensures plenty of privacy. The orientation of most of the glazed areas and the interior towards the garden prevents unwanted views from the access road.

Large-format windows in the rooms provide picturesque views and plenty of daylight. The terrace is designed for seating, grilling, and a relaxation zone by the outdoor pool. You can also relax in the wellness area with a whirlpool and sauna, which includes its own shower and toilet. 

The highest level of comfortable living is ensured by the latest technology. Underfloor heating is planned throughout the house, combined with heating ladders in the bathrooms, with a heat pump combined with an electric boiler as the heat source. A fireplace is also planned. The house's cooling is located in the ceilings. All living rooms are equipped with air recuperation with the possibility of individual settings. The house will be prepared for the installation of photovoltaics.

  • Oak floors
  • Underfloor heating
  • Air conditioning and ceiling cooling
  • Recuperation
  • Heat pump
  • Finnish sauna
  • Outdoor pool
  • Security system
  • AMX smart home
  • Aluminum window frames
  • Monolithic structures and exposed concrete ceilings
  • Technical room
  • Garden house
  • Good access to the center
  • Beautiful views