This modern two-story family villa impresses not only with its generous living area.
The technical sophistication, the surroundings of the house, and the extraordinary view will never bore you.

The technical sophistication, the surroundings of the house, and the extraordinary view will never bore you.
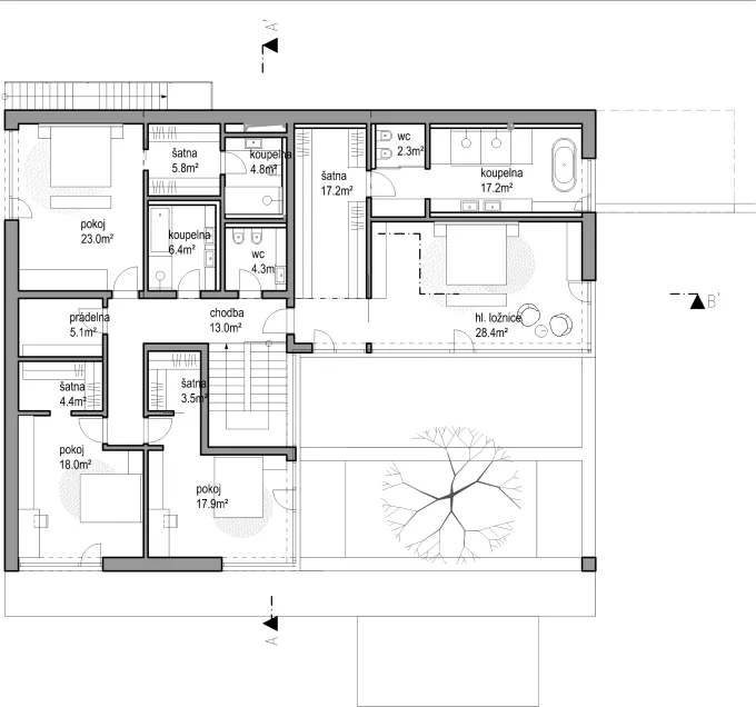
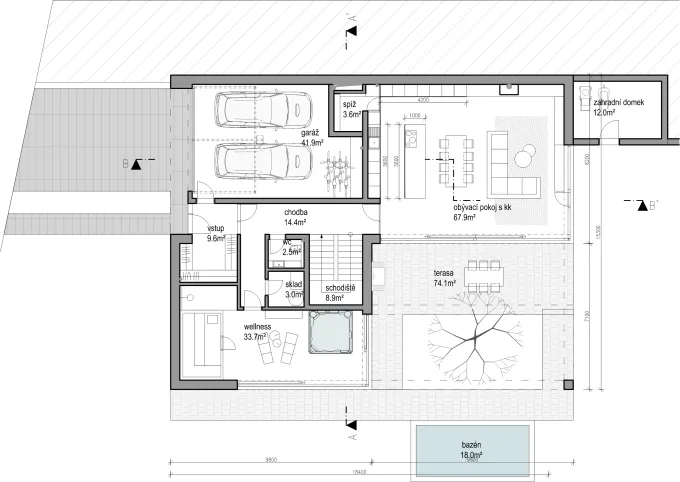
This villa meets high comfort requirements, offering new owners a pleasant layout solution and optimally utilized plot. The garden, with a total area of 1081 m², is ideal for moments spent with a book and a cup of good coffee.
The house's location at a sufficient distance from neighboring plots ensures privacy, which is also aided by the orientation of most glass surfaces towards the garden and the valley. The house has a total of four parking spaces, two of which are in the garage and two are outside. The house is divided into a social part on the ground floor and a private zone on the first floor.
Thanks to the large-format windows, all rooms are full of daylight and offer a calming view of the green garden, the river, and the wide surroundings. The terrace can also be accessed from the luxurious wellness area, which is designed to accommodate a whirlpool, sauna, and shower.
Absolute living comfort is ensured by the above-standard technical facilities of the house, making living easier than ever. The entire house is planned with underfloor heating, and cooling is placed in the ceilings. All living rooms are equipped with air recuperation with the possibility of individual settings. Most of these modern technologies can be controlled through a smart home system. The house will be prepared for the installation of photovoltaics.