Villa 12C

12C
Living Area
404.0 m2
Plot
861.0 m2
Rooms
6
Bedrooms
4
Bathrooms
4
Living Room with Kitchen
87.0 m2
Wellness
22.0 m2
Terraces
95.0 m2
Parking
4

Experience modern living in a luxurious villa with a garden and a pool. 

The design of the luxurious villa, with high standards of execution, generous living space, and a large garden with a view, is by the renowned studio ADR.

Virtual tour

The strategic location of the house, with sufficient distance from neighboring plots in the garden, ensures plenty of privacy. The orientation of most of the glass surfaces is towards the garden, preventing unwanted views from the driveway.

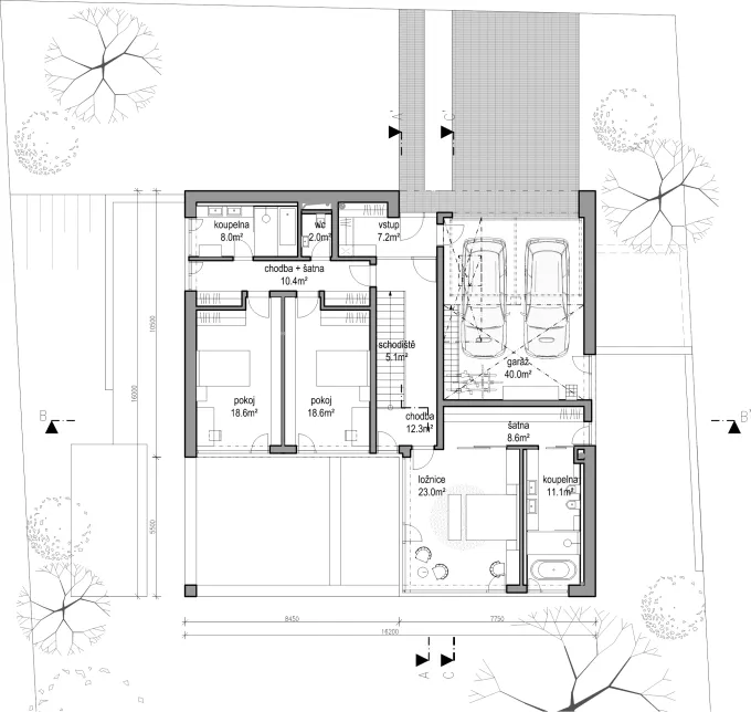
The modern new building has an area of 404 m², divided into two floors. To ensure absolute comfort for the residents, it is strategically divided into social and private zones. The entrance and garage driveway are located on the first floor. The house can also be accessed through the garage with two parking spaces. Additional parking spaces can be found on the driveway.

Both the upper and lower parts are dominated by large-format windows that cleverly connect the interior with the exterior and offer a calming view of the green garden, the river, and the surrounding area. The airiness and connection of the living room with the surrounding garden are accentuated by two adjoining terraces.

You can enjoy active relaxation in the adjoining outdoor pool, heated by its own heat pump. Absolute living comfort is ensured by the above-standard technical facilities of the house, making living easier than ever. Underfloor heating is planned throughout the house. All living rooms are equipped with air recuperation with the possibility of individual settings. Cooling will be placed in the ceilings. The house will be prepared for the installation of photovoltaics.

  • Oak floors
  • Underfloor heating
  • Air conditioning and ceiling cooling
  • Recuperation
  • Heat pump
  • Finnish sauna
  • Outdoor pool
  • Security system
  • AMX smart home
  • Aluminum window frames
  • Monolithic structures and exposed concrete ceilings
  • Technical room
  • Garden house
  • Good accessibility to the center
  • Beautiful views